Casa à venda em Ponta Grossa/PR - Cód. 2302706.001
Oportunidade chegando!
Boa Vista - Ponta Grossa/PR
Valor de VendaR$ 185.000,00
Casa
- 2Quartos
- 1Garagens
- 45m²Área Total
Descritivo do Imóvel
A oportunidade de parcelar sua entrada!
Localizada com Los Angeles, próximo a escola, mercados e na rua do ônibus.
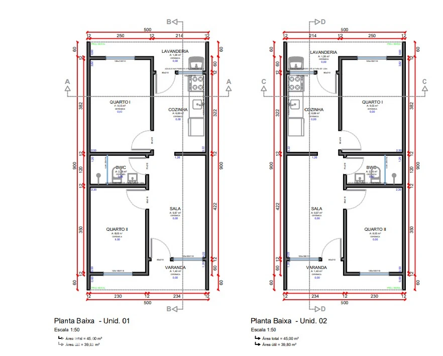
Com aproximadamente 45m², dispostas em:
2 quartos, sala, cozinha, banheiro e área de serviços coberta e vaga de garagem;
Forro PVC, piso em cerâmica, muros altos e Gradil;
Serão duas casas na frente e duas nos fundos, sendo as de fundos com entrada conjugada mas com portão individuais, como mostra no projeto;
Previsão de entrega Fevereiro de 2026.
Aceita carro e parcelamento da entrada, mediante analise
*foto ilustrativa*
Ficha Técnica
- EnquadradoMinha Casa Minha Vida
- Tipo ImóvelCasa
- ClassificaçãoCasa Padrão
- BairroBoa Vista
- VilaLos Angeles
- CidadePonta Grossa/PR
Dependências
- 2 Dormitório(s)
- 1 Vaga(s)
- 1 Banheiro(s)
- 1 Sala(s)
- 1 Cozinha(s)
- 1 Área(s) de Serviço
- Sala 2 Ambientes
Valores de Venda
- Valor do Imóvel*R$ 185.000,00
- Valor do m2R$ 4.111,11/m2
- Aceita Financiamento
Áreas e Medidas
- Área Total45,00m²
- Área Privativa45,00m²
Opções
Pergunte ao Corretor
Enviar minha pergunta!
Responsável pelo Imóvel
Tozetto Imóveis













